Presentamos un magnífico local comercial ubicado junto al Gran Teatro de Elche, a pocos metros de la Glorieta y del Centro de Congresos. Con posible conversión a dos viviendas, con una superficie construida de 185 m² útiles, este espacio destaca por su amplitud y versatilidad, adaptándose tanto a proyectos comerciales como a una futura conversión.
✨ Oportunidad única de inversión en espacio versátil y transformable en el centro de Elche ✨
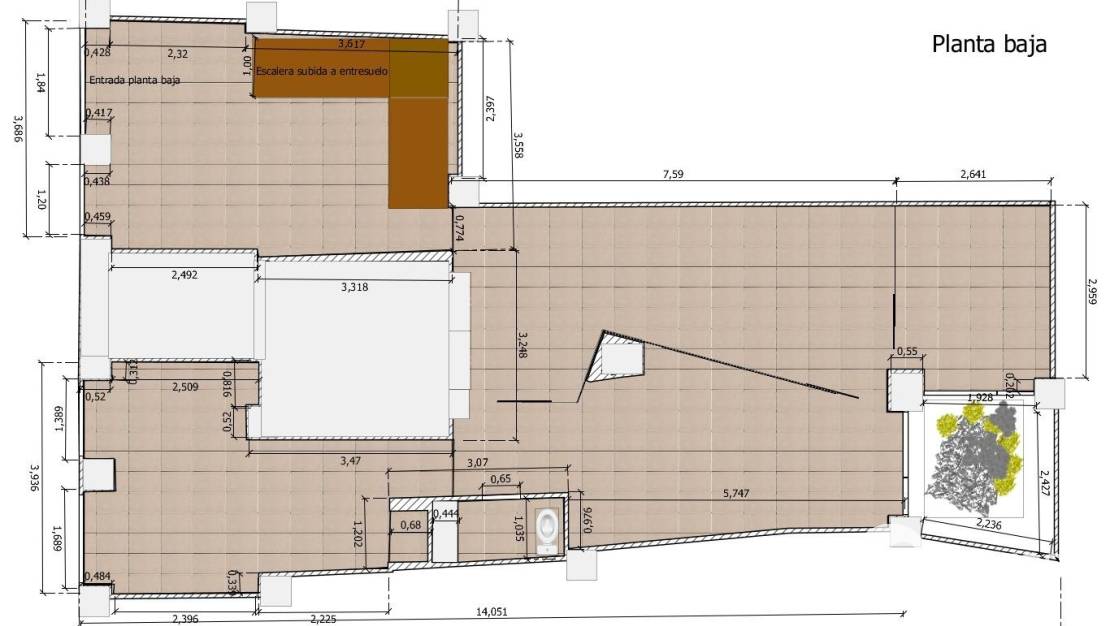
Este inmueble combina funcionalidad, diseño y rentabilidad. Se trata de un local comercial con entresuelo, actualmente habilitado como oficinas modernas y luminosas, pero con una gran ventaja: ambos niveles son convertibles en vivienda.
???? Planta baja: Espacio diáfano con acceso directo desde la calle, ideal para reconvertir en una vivienda tipo loft o mantener como despacho profesional.
???? Entresuelo: Distribución óptima para una vivienda de tres dormitorios, baño completo, vestidor y cocina. Su diseño actual como oficina permite una transformación sencilla y económica.
Totalmente listo para iniciar cualquier actividad, el local cuenta con cinco estancias multifuncionales, perfectas para oficinas, despachos o áreas administrativas, además de tres baños. Su excelente accesibilidad, junto con su cercanía a zonas de gran tránsito y diversos parkings públicos, lo convierten en una opción inmejorable para emprendedores e inversores.
Una oportunidad única en el corazón de la ciudad. ¡No la deje escapar!
Esta información que se proporciona aquí está sujeta a errores y no forma parte de ningún contrato. La oferta se puede cambiar o retirar sin previo aviso. Los precios no incluyen los costes de compra
